61 (2017-09-21 11:26:30 отредактировано )

Re: Дневник. автор Konster

Konster ©:

_Михалыч - твое сообщение 393

Ага, мое... май прошлого года - около месяца с момента регистрации, только-только начинал проектировать свою колонну, даже материал еще не был закуплен. Тоже дурной был  :)

Konster ©:

ему trаnsfi не зря упомянул. у него трубка возврата БЛИЗКО к трубке отбора.

Где близко?
https://alcodistillers.ru/forum/extensi … b1rq6f.jpg

Удиви печень - выпей воды!  ;)

62 (2017-09-25 08:47:02 отредактировано Konster)

Re: Дневник. автор Konster

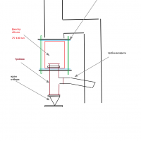
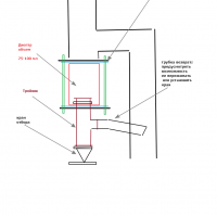
вернемся к основному вопросу. такой узел отбора можно делать или нельзя ?

в соседнем городе приобрел шаровый краник от фильтра очистки воды. 180руб против 650 у наших барыг. надо ли его омеднять ?

  • узел отбора2.png
    size: 43.1Кб type: png
  • узел отбора2.png
    size: 41.15Кб type: png
никогда не опускай руки - пропустишь в бороду
с водкой все идет хорошо... кроме ног

63

Re: Дневник. автор Konster

Konster, Так делать нельзя¡!!!!!!!!!!
Стакан отбора имеет емкость около нуля.
В теории не разобрался!!!!!
Разберись, как это работает. Для наглядности можешь посмотреть в моей теме : Наши аппараты, Комплект оборудования для самогоноварения. Там и фотки и видео есть.
С плпншета ссылку не получается скинуть.

Алкоголь не помогает найти ответ,
он помогает забыть вопрос!

64

Re: Дневник. автор Konster

не то, что не разобрался, а тогда уже запутался.
в теме про объем узла отбора точки над Ё не расставили.

возврат выше отбора, и объем ДО паровой трубы около 100 мл.

уровнем возврата делить объем стакана отбора пополам ?

никогда не опускай руки - пропустишь в бороду
с водкой все идет хорошо... кроме ног

65 (2017-09-25 13:10:04 отредактировано )

Re: Дневник. автор Konster

Konster, вроде написал развернутый ответ, а он отправился не понятно куда).
Если что повторюсь.
Наша цель создать сепаратор для выделения отдельной фракции. Уже указывалось, что для наших об'емов достаточно 30 мл. Это об'ем от возврата до отбора. Делать его в тонкой трубке не желательно, флегма должна свободно перемешиваться.
От возврата до паровой трубы это буфер для реагирования на захлеб. Делать его чрезмерно большим нельзя, чтобы дополнительно не охлаждать флегму.
Отсюда полученные 100 мл стакана достаточно поделить примерно 40 на 60.
40 мл получится сепаратор. 60 буфер для реагирования на захлеб

Konster, вот отсюда посмотри Комплект оборудования для самогоноварения
Вся схема будет понятна.

Алкоголь не помогает найти ответ,
он помогает забыть вопрос!

66

Re: Дневник. автор Konster

Konster, точный размер сепаратора возможно сделать только при условии одного и неизменного процесса. Если ты готов делать только один вид браги всегда на одном сырье, сносишь раз десять на анализ, после чего высчитаешь среднее колебание примесей... тогда под эти данные реально сделать очень четкий размер и разработать полную методику ректификации поминутно.   Правда полной автоматики не получится в любом случае..

У вас в жизни всегда будет все, что вы хотите, если вы будете помогать другим людям получать то, чего хотят они.
Регистрация на форуме отключает почти всю рекламу!

67 (2017-09-27 08:49:58 отредактировано Konster)

Re: Дневник. автор Konster

пока задача сделать стабильно работающую колонну. не получится запрыгнуть на 5 этаж не пройдя по всем предыдущим. главное не наступать на грабли с короткой ручкой.
немного эскизов для меня и для сварщика. поинтересовался лазерной резкой  в соседнем городе.. неудобно и накладно.
чертежи им только в автокаде подавай, материал заказчика

  • колонна голова.png
    size: 23.34Кб type: png
  • колонна_соед2.png
    size: 30.45Кб type: png
никогда не опускай руки - пропустишь в бороду
с водкой все идет хорошо... кроме ног

68

Re: Дневник. автор Konster

Konster,

  • Runyo3sLBO_P8lI4A5g2.png
    size: 22.03Кб type: png
Алкоголь не помогает найти ответ,
он помогает забыть вопрос!

69 (2017-09-27 12:41:18 отредактировано Konster)

Re: Дневник. автор Konster

al,  да, все так и будет.   трубки буду делать как у тебя.
сделал заготовки под фланцы трубы димрота  - квадратики из 3мм 70х70.
прижимать к ним буду 2-х миллимитровые.

никогда не опускай руки - пропустишь в бороду
с водкой все идет хорошо... кроме ног

70 (2017-09-27 12:44:57 отредактировано KEE)

Re: Дневник. автор Konster

Я себе вот такие фланцы делал. И тоже 70х70.

71 (2017-09-28 13:08:49 отредактировано Konster)

Re: Дневник. автор Konster

разжился кусками медной трубки 8мм у товарищей, которые ставят газ на авто (под градусники), и 40см  ф10х1 мм в автомагазине для грузовиков за 100руб ( под возврат). намного серьезнее чем кондиционерная.
прикупил кислоту и воду для меднения.

рисую эскиз куба.  куб со стороной 25см = 15литров (только для СС). соединение с колонной через молочную муфту.  дилемма - муфту варить к кубу или к съемной крышке ...
люк делать буду обязательно - смена/добавление  тэна, помывка и т.д.
люк не менее ф10см  - в меньший рука не пролезает.
подрывной клапан будет.

восходящая часть колонны будет цельной. под 170см. и отдельно потом сделаю метровую царгу. гайка и муфта хорошо добавляют вес конструкции, а площадь опоры невелика. увеличение площади куба - увеличение неснижаемого остатка. буду дополнительно крепить колонну за верхнюю часть .

вопрос по крепости заливаемого СС на ректификацию.  разбавлять до 30% или если без укрепления оставлять как есть 40-50%об  (ни в коем случае не выше по ТБ. так ?)?
а при незначительном количестве СС разбавить до 15-20% (закрыть неснижаемый объем)?

никогда не опускай руки - пропустишь в бороду
с водкой все идет хорошо... кроме ног

72 (2017-09-28 13:09:13 отредактировано )

Re: Дневник. автор Konster

Konster ©:

хорошо добавляют вес конструкции, а площадь опоры невелика.

Очень удобна в этом плане платформа со "спинкой". Платформа может быть на колесиках и с регулировкой по уровню. К ней, спинке, крепиться колонна. И проблема неустойчивости тем самым решается.

Konster ©:

вопрос по крепости заливаемого СС на ректификацию.

40% оптимум в плане отбора голов и затрат на энергию.


При большей спиртуозности, разделение азеотропов идет труднее.

Ленивые всё делают быстро, что бы скорее отделаться от работы и делают хорошо, чтобы не переделывать.
С уважением, Николай.
Моё оборудование : → Винокурня Николя

73

Re: Дневник. автор Konster

Konster ©:

люк не менее ф10см

12

Konster ©:

(ни в коем случае не выше по ТБ. так ?)?

При чем здесь ТБ если на выходе 96%?
Технология важнее.
Как уже Николай сказал, экономически целесообразно около 40%, меньше энергии уходит.
Если ниже, то греть долго, но головы чуть легче расстаются с телом.
Если выше, то головы не хотят отделяться.

Konster ©:

а площадь опоры невелика.

Это да, колонна получится тяжелая.

Алкоголь не помогает найти ответ,
он помогает забыть вопрос!

74 (2017-09-30 14:39:47 отредактировано Konster)

Re: Дневник. автор Konster

вчера решил домотать оставшиеся "усы" димрота и загнуть их для установки в верхнюю крышку.
с кондиционерной трубкой все операции надо делать пока в ней соль. чуть не запоганил. продувается с усилием.

со сварщиком решили, что выход для трубы и крышка куба будут жить раздельно. крышка будет квадратной. размер куба пришлось скорректировать из-за длины ТЭНа.

для меднения  добрые самаритяне подтопырили трансформатор. на одной из пар выводов нашел 6В.  купил 10А диоды.

очередная попытка сделать диоптр закончилась крахом. причем дважды. донорами были бутылка из под уксуса и банка из под детского пюре. пилил бибирским алмазным диском УШМкой. колет. разжился новыми алмазными надфилями.

никогда не опускай руки - пропустишь в бороду
с водкой все идет хорошо... кроме ног

75

Re: Дневник. автор Konster

Konster, для диоптра переходи на стопки- шкалики).

Алкоголь не помогает найти ответ,
он помогает забыть вопрос!

76

Re: Дневник. автор Konster

Konster ©:

очередная попытка сделать диоптр закончилась крахом.

я не стал заморачиваться 

  • DSC_0509.JPG
    size: 183.84Кб type: JPG
Выпил воды- печень в шоке!

77

Re: Дневник. автор Konster

И я не стал.  *YES*
Поставил силиконовую трубку.  :)

78

Re: Дневник. автор Konster

IGAN ©:

силиконовую

тоже так было,плохо видно через неё

Выпил воды- печень в шоке!

79

Re: Дневник. автор Konster

Аркаим*PARDON* я всё вижу нормально.  *YES*
Смысл диоптра вижу только в случае, как у al сделано -  *THUMBSUP*

80

Re: Дневник. автор Konster

Аркаим ©:

я не стал заморачиваться 

Это не стеклянный шприц???
Вот тебе вариант стороннего запаха.

Пиво — интеллектуальный напиток. Какая досада, что его пьет так много идиотов.